Netley Hill Estate, Southampton
- Apartment
- 2
- 1
- 1
Key Features:
- Two Bedroom First Floor Apartment
- Lounge/Diner
- Kitchen
- Large Communal Grounds
- Communal Parking
- No Forward Chain
Description:
Beautifully modernised & spacious two bedroom apartment, situated on the first floor of this impressive manor house. Offered with no forward chain. Viewing recommended.
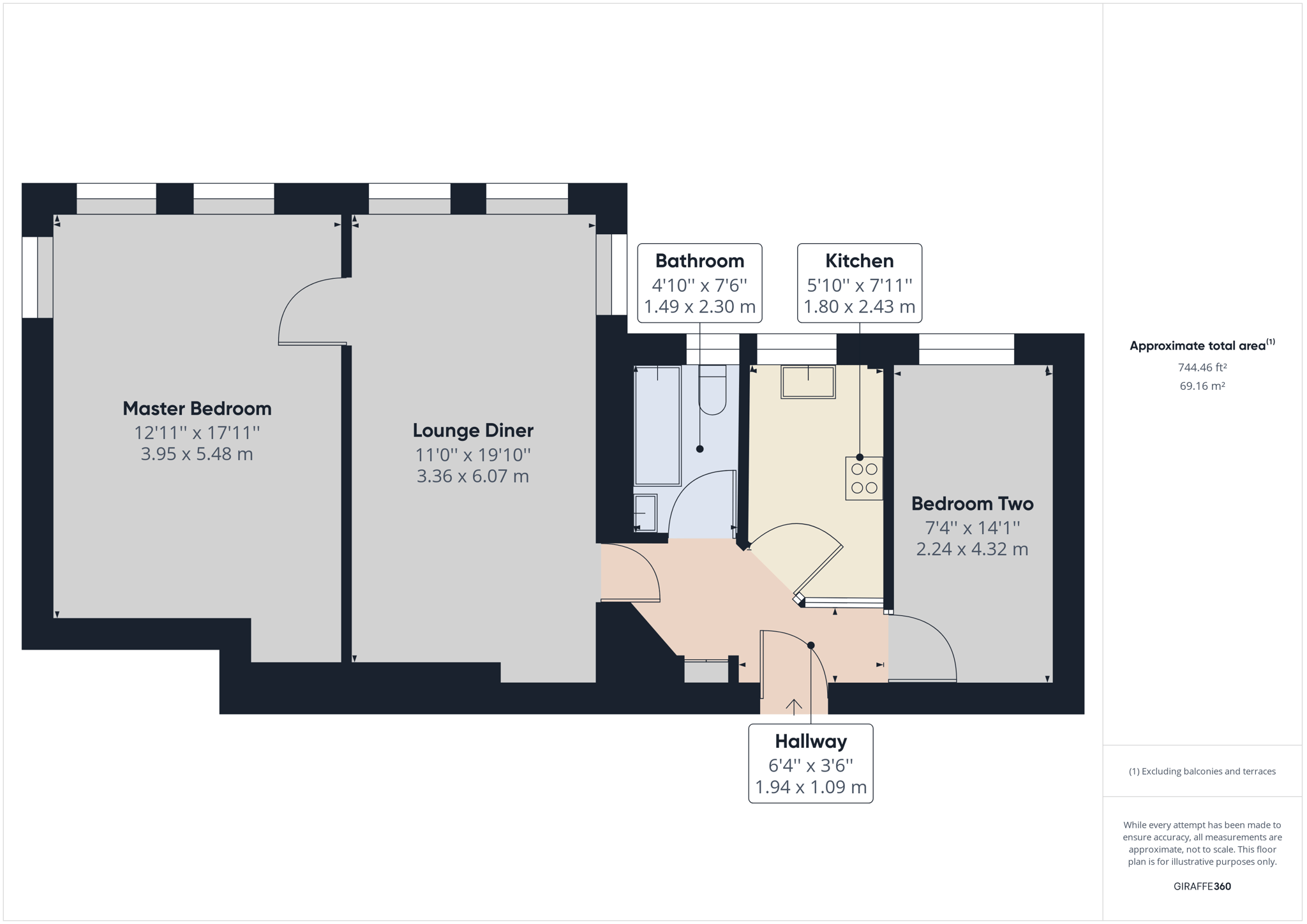
HALLWAY (1.94M x 1.09M):
Hardwood entrance door, brush mat and carpeted throughout. Doors to principal rooms. Built in storage cupboard. Radiator with thermostat control. Smooth plastered ceiling and light point.
KITCHEN (2.43M x 1.80M):
Double glazed UPVC window to the front elevation. Matching wall and floor mounted units and matching drawers with wood effect work surfaces to three sides of the room. Tiled to principal areas. Stainless steel sink and drainer with mixer tap over. Four ring gas hob with a stainless steel extractor hood over and an electric fan assisted oven under. Wall mounted gas fired boiler. Ample power points. Vinyl floor covering. Smooth plastered ceiling and light point.
LOUNGE DINER (6.07M x 3.36M):
Three double glazed UPVC windows to the front elevation. Wall mounted telephone intercom entry system. Ample power points and TV point. Two radiators with thermostat control and a freestanding home thermostat. Carpeted flooring. Smooth plastered ceiling and two light points.
BATHROOM (2.30M x1.49M):
Obscured double glazed UPVC window to the front elevation. Panel bath with shower attachment and a wall mounted shower above. Tiled to principal areas. Low level WC. Wash hand basin with vanity unit beneath and a chrome mixer tap over. Chrome heated towel rail. Vinyl floor covering. Smooth plastered ceiling and ceiling light.
MASTER BEDROOM (5.48M x 3.95M):
Three double glazed UPVC windows to the front elevation. Two radiators with individual thermostat control. Ample power points and telephone point. Carpeted flooring. Smooth plastered and coved and ceiling with light point.
BEDROOM TWO (4.32M x 2.24M):
Double glazed UPVC window to the front elevation. Decorative block glass windows. Radiator and ample power points. Smooth plastered ceiling and light point.
ADDITIONAL INFORMATION
Council Tax Band: B - Eastleigh Borough Council. Charges for 2026/27 £1822.36.
Lease is a residue of 125 years from 17th January 2018.
Maintenance Charge for year ending 2025 £2029.05. 2026 maintenance charge: £2112.00.
Ground Rent: £125.00 payable every six months. (£250 per annum)
Viewings strictly by appointment with Manns and Manns only. To arrange a viewing please contact us on 02380 404055.












